
更多产品查看企业官网:http://www.king-long.com.cn/
1.1.1 基车介绍
厦门金龙(9米)XMQ5130XYL体检车参数表 | ||||
车型 | XMQ5130XYL医疗车 | |||
技术参数 | 长 | 8995mm | 座位数 | 0+1 |
宽 | 2500mm | 光盘座位数 | 2-9 | |
高 | 3315,3385,3455,3515,3580,3650mm | 总质量 | 13000kg | |
轴距 | 4300mm | 整备质量 | 9895,10500,11150,11370kg | |
1.1.2 基础车配置
项目 | 标准配置 | |
底盘配置 | 发动机 | YCS06 270-62 |
排放标准 | 国六 | |
发动机型式 | 直列、六缸、液冷、增压中冷、高压共轨柴油机 | |
行车制动 | 前后鼓式 | |
缓速器 | - | |
ABS | WABCO ABS | |
变速器 | 国产六档变速箱 | |
变速箱操纵机构 | 两软轴远距离操纵器 | |
离合器 | 国产铁流 | |
悬架 | 钢板弹簧 7/10 | |
轮胎 | 10R22.5无内胎子午线 | |
油箱 | 252L | |
集中润滑系统 | 无 | |
车身配置 | 承载方式 | 半承载车身 |
乘客门 | 前中全铝遥控外摆乘客门 | |
司机椅 | 仿皮机械减震可调司机椅(三点式安全带) | |
侧窗 | 全封闭钢化玻璃 左右最后一扇上推拉窗(下固定) | |
天窗 | 1个换气扇顶风窗 | |
后视镜 | 电动电除霜兔耳式后视镜 | |
侧围内饰 | PVC板 | |
侧仓门 | 手动外翻式全铝仓门 | |
出风口 | 简易出风口 | |
油漆 | 素色漆 | |
电器空调 | 空调 | 金龙KL-IVY/奥柯压缩机/2.2万大卡非独立空调 |
暖风 | 无 | |
除霜 | 240W无外循环除霜机 | |
KL-988 | 金龙KL-988专业版 | |
行车记录仪 | 有行车记录仪 | |
行车记录打印机 | 有行车记录仪打印机 | |
服务设施 | 灭火器 | 4kg*1 |
发动机舱自动灭火装置 | 有 | |
防盗报警安全锤 | 3把 | |
前挡遮阳帘 | 单幅前档遮阳帘 | |
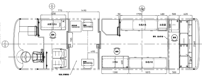
1.1.3 改装配置
模块 | 序号 | 项目名称 | 数量 | 备注 |
登记准备区 | 1 | 操作工作台 | 1个 | 不锈钢 |
2 | 休息座椅 | 2个 | ||
3 | 工作圆凳 | 1个 | ||
DR检查区 | 1 | 机房 | 1套 | |
2 | 电动铅门 | 2套 | ||
3 | 铅房防护 | 1套 | 2-3mm铅板防护,辐射量远小于国家标准 | |
4 | DR机(选装) | 0套 | 选配 | |
B超/心电检查区 | 1 | B超/心电检查床 | 1张 | 下为木质储物柜,上有床垫 |
2 | 检查室 | 1套 | 拉帘隔断 | |
3 | 工作台 | 1个 | 不锈钢 | |
4 | 工作圆凳 | 1个 | ||
其他区域 | 1 | 工作台 | 1套 | 不锈钢 |
2 | 休息沙发 | 2个 | ||
3 | 垃圾桶 | 1个 | ||
4 | 圆凳 | 1个 | ||
设备、供能及电路改装 | 1 | 房车吸顶空调 | 1台 | 国内知名品牌 |
2 | 壁挂空调 | 1台 | 冷暖空调2P | |
3 | 配电柜箱体 | 1套 | 含电源转换开关、断路器和保险 | |
4 | 逆变器 | 1个 | 3KW | |
5 | 整车医疗束线 | 整车 | 布线需符合市电、车电要求,防火,耐腐蚀 | |
6 | 组合五孔插座 | 20个 | 安装位置现场待定 | |
7 | 市配电系统 | 1套 | ||
8 | 卷线盘带电缆插头 | 1套 | 30米 |
1.1.4 布置图

更多产品查看企业官网:http://www.king-long.com.cn/